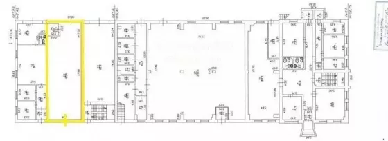
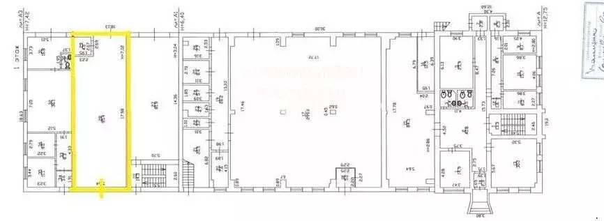
Сдается коммерческая, 100 кв.м., / эт
Обзор№ - 752
| Арендная плата (Помесячно) | 90 000 |
|---|---|
| Цена кв.м. в год | 0 |
| Тип коммерческой | Торговое помещение |
| Площадь, кв.м. | 100 |
Адрес
| Населенный пункт | Тюмень |
|---|---|
| Район города | Калининский |
| Улица | улица Гастелло |
| Номер дома | 78 |
В избранное Торговая площадь (100 м)
Аренда без комиссии Расположение и характеристики объекта:Калининский округ, район Червишевского трактапервый этажобщая площадь 100 м.кв.Свободная планировкаотдельный вход Высота потолка 3,1 месть 2й выход для разгрузкиесть санузелкосметический ремонткоммунальные платежи оплачиваются отдельно.По соседству: Красное и Белое , Светлое и Тёмное , Магнит Бесплатная парковка 50 машиноместкоммунальные платежи оплачиваются отдельновам понравилось помещение и хотите его посмотреть? Звоните




