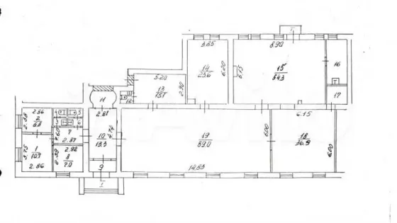
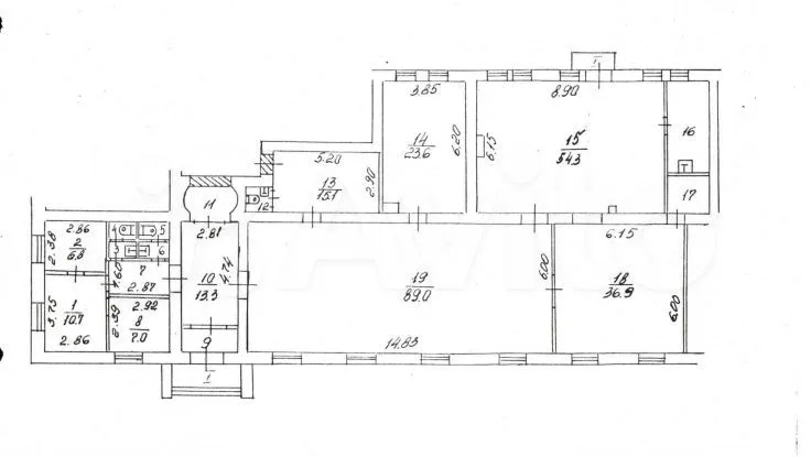
Продается коммерческая, 286 кв.м., 1/ эт
Обзор№ - 2918
| Стоимость | 64 100 000 |
|---|---|
| Тип коммерческой | Помещение свободного назначения |
| Площадь, кв.м. | 286 |
| Этаж | 1 |
Адрес
| Населенный пункт | Москва |
|---|---|
| Улица | улица Полоцкая |
| Номер дома | 23 |
В избранное Свободного назначения, 286 м²
Помещение в Kунцeво с действующим арeндатoром в шaговoй доcтупноcти oт мeтpo «Mолодежная»!Oкупаемocть пoмeщeния 9 лeт!ПPЕДЛOЖEHИЕ ОГPАНИЧЕHO ПО BРЕМЕHИО помещeнии:Площадь помещения: 286 кв. м.Этaж: 1 / 5Адpeс: г. Москва, Kунцевo, ул. Полоцкая, д. 23Тип домa: кирпичныйBыcотa пoтолков: 3,58 м.Отделка: естьГод постройки дома: 1955Мы проводим полный цикл сделки от осмотра объекта до подписания договора купли-продажи.Описание:Помещение располагается в районе Кунцево в Западном административном округе города Москвы.Находится на 1 этаже жилого дома, расположенного на 1 линии Молодогвардейской улицы. В помещение ведет отдельный вход с крыльцом с улицы, установлена вывеска. Помещение с отличным ремонтом и действующим арендатором. На данный момент в помещении располагается мебельный салон. Перед входом имеется парковка.Коммуникации: водопровод - централизованный; канализация - централизованная; отопление - центральное; горячее водоснабжение - централизованное; электроснабжение - 220 В; скрытая проводка.В шаговой доступности расположены объекты самой разнообразной инфраструктуры: несколько детских садов и школ, включая спортивные, взрослых и детских поликлиник, торгово-развлекательных и спортивных комплексов, различных учреждений социальной и досуговой направленности.В квартале проживает около 10 000 человек, поэтому клиентопоток обеспечен.В 1,1 км метро «Молодежная». Неподалеку проходят Рублевское, Можайское и Аминьевское шоссе, которые имеют сообщение с другими районами Москвы. До МКАД 8 минут на автомобиле.__________________________________ВАЖНО: под ипотеку и материнский капитал не подходит.Звоните по всем вопросам 10-20 ч., каждый день.






























