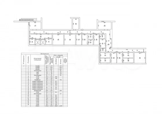
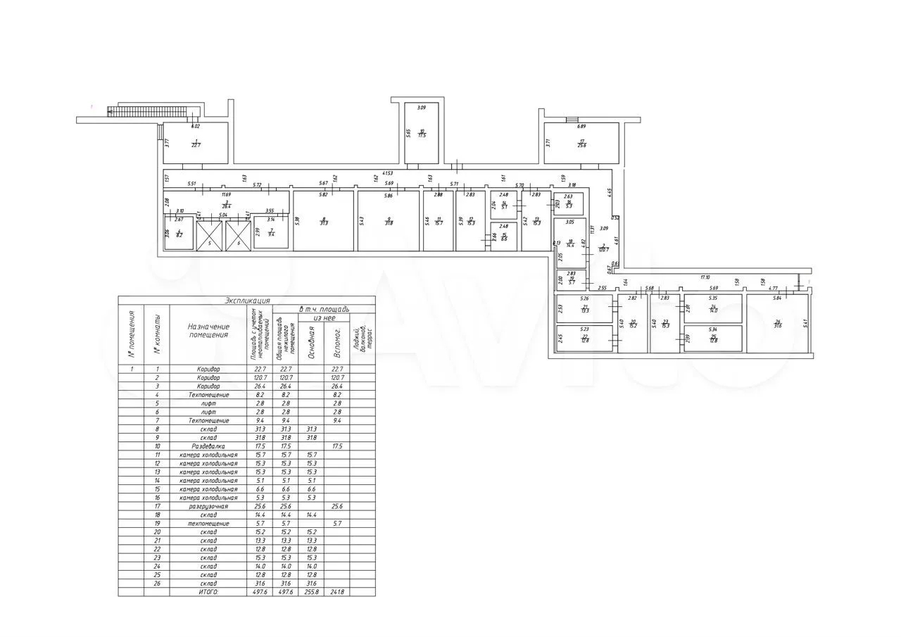
Сдается коммерческая, 500 кв.м., / эт
Обзор№ - 3061
| Арендная плата (Помесячно) | 570 000 |
|---|---|
| Цена кв.м. в год | 0 |
| Тип коммерческой | Складское помещение |
| Площадь, кв.м. | 500 |
Адрес
| Населенный пункт | Москва |
|---|---|
| Район города | Бескудниковский |
| Улица | шоссе Коровинское |
| Номер дома | 21к1 |
В избранное Свободного назначения - Склад, пвз, Бьюти 500 м²
Сдается помещение свободного назначения. Подвал пристроя к жилому дому, над нами магазин Пятерочка и Сбербанк. Первая линия Коровинского шоссе, огромный пешеходный и автмобильный трафик. Возможна сдача кабинетами. Идеально подойдет для компьютерного салона, склада, бьюти сферы и многих других видов деятельности.
В одной минуте от CВХ МСД. Удобная парковка и разгрузка.
Через дорогу Ангарский парк.
Цена указана за все помещение. Цена по кабинетам будет выше.
В настоящее время проводится ремонт. Принимаем заяки на бронь.


















