Сдается коммерческая, 224 кв.м., 1/ эт
| Арендная плата (Помесячно) | 560 250 |
|---|---|
| Цена кв.м. в год | 0 |
| Тип коммерческой | Помещение свободного назначения |
| Площадь, кв.м. | 224 |
| Этаж | 1 |
| Населенный пункт | Балашиха |
|---|---|
| Район города | микрорайон Салтыковка |
| Улица | улица Советская |
| Номер дома | 13 |
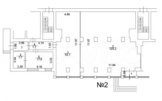
id:2075. Сдается помещение свободного назначения площадью 224,1м.Прямая аренда.Арендная ставка 2500 р за 1 кв.м в месяц.Помещение находится в центре ГО Балашиха где сосредоточены все крупные торгово-развлекательные центры.Постоянный дополнительный поток ваших клиентов будет включать многочисленных жителей ближайших домов и ЖК, сотрудников и посетителей МФЦ, БЦ East Gate, Пенсионного фонда, Промсвязьбанка, работников ближайших офисов, магазинов, предприятий сферы услуг.В этой части города на ул. Советской работает большое число компаний малого, среднего и крупного бизнеса.При ежедневном потоке в 8,5 тыс. вашему бизнесу обеспечена стабильная и широкая клиентская база.Весь городской транспорт проходит через ул. Советскую и останавливается в 30м от здания.Коммуникации:Электроснабжение 50 кВтВодоснабжение ЦентральноеКанализация ЦентральнаяОтопление ЦентральноеПриточно-вытяжная вентиляцияПарковкаПомещение расположено на 1-ой линии центральной улицы города.Высокий пешеходный и автомобильный трафик.Высота потолков 3мОхранно-Пожарная сигнализацияДва отдельных входа в помещение.Вход оборудован пандусомПомещение освобождается по запросу

































